昆明醋酸纤维有限公司空调风机轴加工制作4项、干燥机履带(干燥板)挡片 按图制造项目询价采购公告(第二次)
公告编号:KC20250293、KC20250294
1.采购项目简介:
1.1采购项目名称:空调风机轴加工制作4项、干燥机履带(干燥板)挡片 按图制造
1.2采购人:昆明醋酸纤维有限公司
1.3采购代理机构:无
1.4成交供应商数量及成交份额:1家,100%
1.5项目最高限价:15700元
2.采购范围及相关要求:
2.1采购范围:采购满足(技术文件)要求的
序号 | 物料 | 数量 | 单位 |
联系工程师 |
1 | 11-237.00空调风机轴加工制作(Φ30mm×660mm) | 1 | EA |
贺俊良 (需现场踏勘) |
2 | 11-240.00空调风机轴承座加工制作 | 2 | EA | |
3 | 屋顶风机皮带轮加工制作(Φ230) | 6 | EA | |
4 | 屋顶风机皮带轮加工制作(Φ115) | 6 | EA | |
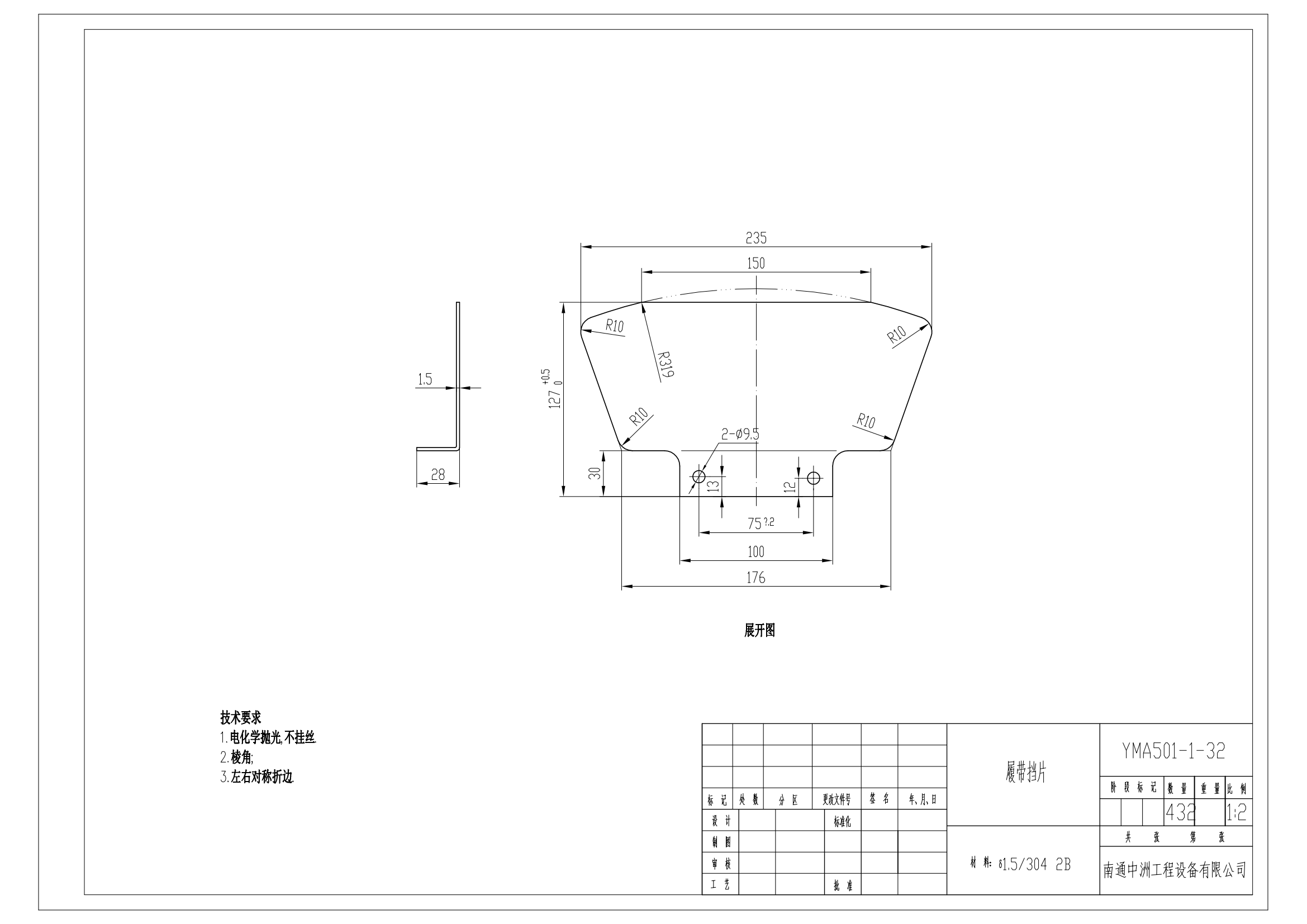
5 | 干燥机履带(干燥板)挡片 按图制造 | 100 | EA | 王自强 |
《YMA501-1-32履带挡片(干燥机履带(干燥板)挡片) 图纸》:

2.2交货期: 2025年11月28日前
2.3交货地点:云南省昆明市盘龙区穿金路725号(物料需送至厂区内指定地点)
2.4货物质量标准或主要技术性能指标:详见采购技术文件(附件)
3.资格要求:
3.1须为中华人民共和国境内依法成立的法人或其他组织(具备有效的营业执照或事业单位法人证书或其他类似的法定证明文件)
3.2具有依法缴纳税收和社会保障资金的良好记录:
1)须提供缴税所属时间在本项目公开采购前一年内任意2个月的税务局税收通用缴款书或银行电子缴税(费)凭证或税务局出具纳税情况的相关证明;依法免税的,应提供依法免税的相关证明文件;新成立的公司,提供相关内容情况说明或证明材料(提供复印件)。
2)须提供缴费所属时间在本项目公开采购前一年内任意2个月的社会保险费缴款书或银行电子缴税(费)凭证或社保管理部门出具的有效的缴款证明;依法免缴的,应提供依法免缴的相关证明文件;新成立的公司,提供相关内容情况说明或证明材料(提供复印件)。
投标人财务状况良好,具有健全的财务会计制度(投标文件中附近三年(2022-2024年)的财务报表或经第三方审计的审计报告复印件。财务报表包括资产负债表、损益表和现金流量表);(注:若成立不足三年的企业则提供成立后的财务报表或经第三方审计的审计报告或证明材料及说明)
3.4业绩要求: / ;
3.5信誉要求:
1)在“信用中国”网站未被列入“严重失信主体名单查询”;
2)在“国家企业信用信息公示系统”未被列入“严重违法失信名单(黑名单)信息”;
3)在中国裁判文书网“刑事案件”专栏查询,投标人及投标人单位法定代表人无行贿犯罪记录。
(①列入经营异常名录信息或列入严重违法失信企业名单已移出的,视为无列入;②事业单位、团体组织或个人无须提供)
3.6参加投标活动前三年内,在经营活动中没有重大违法记录(重大违法记录,是指投标人因违法经营受到刑事处罚或者责令停产停业、吊销许可证或者执照、较大数额罚款等行政处罚)
3.7在劳动保护、节能减排与生态环境保护方面符合国家规定要求(提供声明函);
3.8两家或以上单位有如下情况之一的,不得同时参加报名,一经发现将视同串标处理,相关报名、报价均作无效报名、报价处理:a、法定代表人为同一人的;b、存在直接控股或管理关系的;c、提供与其他潜在报名人无关联关系承诺函。
3.9本项目不接受联合体报名;
3.10本项目采购报价文件不采用电子方式;
3.11承担本项目的主要人员要求: / ;
3.12其他要求: / ;
4.评审方法及标准:
4.1审查方式:资格后审;
4.2评分标准:□综合评分法 ☑符合要求的最低价。
5.询价文件获取方式:
5.1有意向的单位请在规定时间内发正式报名函至昆纤公司采购联系人:
地址:昆明市盘龙区穿金路725号
联系邮箱:hfz@ynkcfc.com
联系电话:0871-65631028-2043
5.2报名函及资质要求需加盖公司公章,报名函连同资质要求以PDF文档形式添加到邮件附件(附件大小超过20M的需分包压缩分次发送)发送至以下昆纤公司采购联系人;
5.3报名函标题:XXXX单位/公司参加昆纤XXXX项目采购报名函;
5.4询价公告期结束后,昆纤公司经办采购员将发正式报盘文件至报名且评审通过的单位;
6.发布公告的媒介:
6.1本询价采购公告仅在昆明醋酸纤维有限公司官方网站(www.ynkcfc.com)及中国招标投标公共服务平台(https://bulletin.cebpubservice.com)发布;
6.2本公司对其他网站或媒体转载的公告及公告内容不承担任何责任。
7、公告期限:北京时间2025年11月11日至2025年11月13日17时
8、报名函:
8.1 报名单位报名函
单位名称 | 联系人 | |||
联系电话 | 邮箱 | |||
拟参加竞争的项目名称及公告编号 | ||||
法定代表人身份证正面: 法定代表人身份证反面: | ||||
委托联系人身份证正面: 委托联系人身份证反面:
| ||||
注:如联系人为法人代表本人可不填授权委托书,加盖公章即可。 法人授权委托函(加盖公章) 法定代表人授权委托书 兹有___________________________ 公司法定代表人___________现授权 __________先生/女士(性别:____身份证号码:_____________________)全权代表本公司参加昆明醋酸纤维有限公司___________________________项目的报价、商务接洽和工作。我单位对被授权人的签名负全部责任。 授权委托时间自_________________至_________________,被授权人签署的文件(在授权书有效期内签署的)不因授权的撤销和到期而失效。被授权人无转委权。
授权人签字(或私章): 被授权人签字:
日期: 单位盖章: | ||||
8.2需提供第三条“资格要求”中的相关资料;
8.3只提供报名函不提供第三条“资格要求”中的相关资料或资料不全的报名无效;
注:自然年内首次报名参与本公司项目的须提供第三条“资格要求”中的相关资料,后续再报名参与其它项目时,相关资料未发生变化的无须重复提供;
8.4不符合要求的报名函(8.1)将不被接受;
8.5超过公告期限的报名函将不被接受。
9.技术文件(附件):
无